Das Haus zum Leben.
ca. 196,84 m²
City Villa 2
Einfamilienhaus

Viel Platz und modernsten Wohnkomfort bietet die City Villa 2 sowohl im Erd- als auch im Obergeschoss, verteilt auf 196,84 m² und 6 Zimmer.

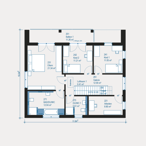
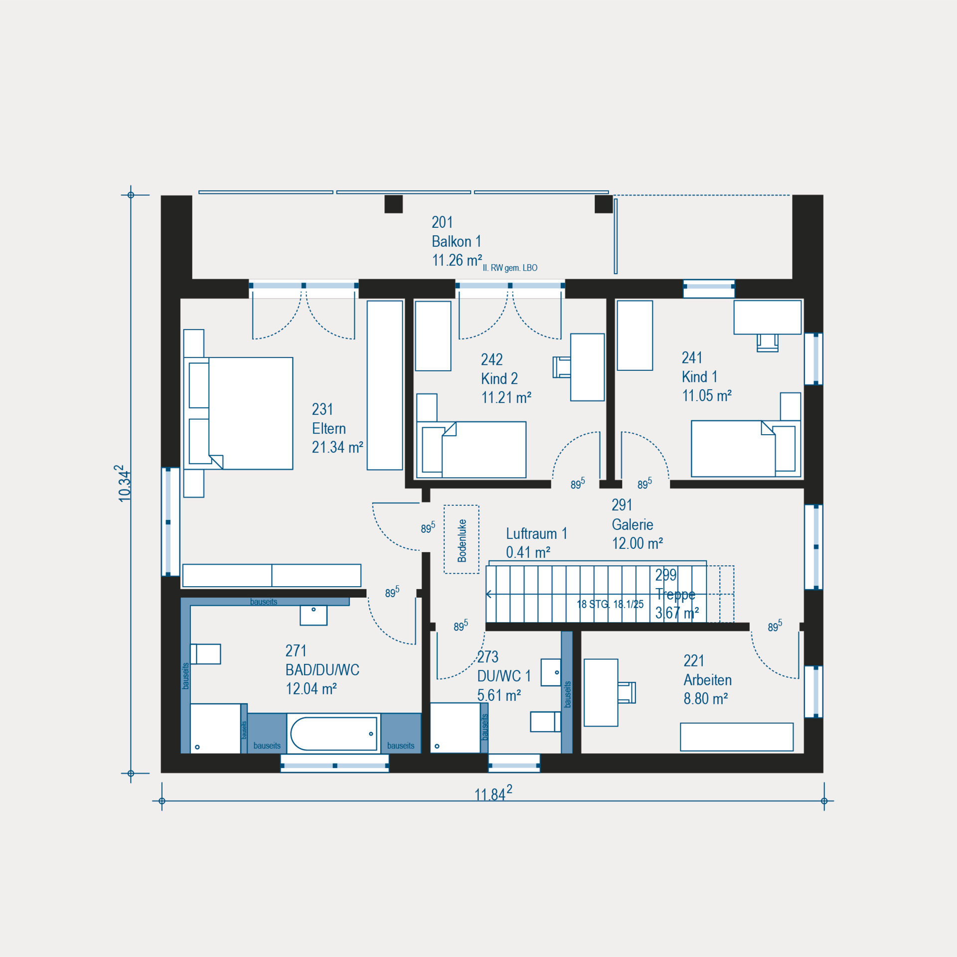
Aussenmaße: 11.84 m x 10.34 m

Preis: ab 305.999 €
Grundrisse vergleichen
Inklusiv-Leistungen
  • Architektenleistung
  • Bau-Sicherheitspaket
  • Heizungsanlage- und Elektropaket
  • Dreifach verglaste Fenster inkl. Aluminiumrollläden
  • Luft-Wasser-Wärmepumpe
  • Echtholztreppe
  • Bodenbeläge und Tapeten
  • Luftdichtigkeitsmessung
  • Lichte Raumhöhe von 2,75 m
  • Dämm- und Beplankungspaket
  • Haustechnik inklusive Rohrleitungen
  • Kontrollierte Be- und Entlüftungsanlage mit Wärmerückgewinnung
  • Sanitärobjekte
  • Innentüren, Zargen und Fliesen
  • Steckdosen

Alle Einzelheiten sind in unserer Baubeschreibung nachzulesen.

*ausgeschlossen Apartmenthäuser

Leistungsbeschreibung im Detail

ca. 196,84 m²

StadtvillaCityVilla2

Modernes Highlight

Viel Platz und modernsten Wohnkomfort bietet unsere Stadtvilla City Villa 2 sowohl im Erd- als auch im Obergeschoss. Durch eine optimale Raumaufteilung und fließende Übergänge von der Küche in Wohn- und Esszimmer steht einem Besuch von Freunden und Familie nichts mehr im Wege. Als Highlight garantiert das geräumige Tageslichtbad Badespaß für die ganze Familie. Im Obergeschoss mit 3 Schlafzimmern und Balkon findet jeder seinen persönlichen Freiraum für Rückzug und Entspannung.

22
0
°
Dachneigung

196
0
Nettogrundfläche

0,04
0
Meter
Kniestock

Grundriss

Hohe Individualität

Baufamilien können nach eigenem Geschmack den Grundriss des Hauses variieren und weitere Anbauteile planen. Dadurch besteht die Möglichkeit, das Haus geräumiger zu machen.

Erdgeschoss
99,86 m²
Obergeschoss
96,95 m²

Jetzt kostenloses Infopaket anfordern!

kostenlos anfordern

Sichere dir vielfältige Informationen rund um dein Traumhaus von allkauf: Unser allkauf Magazin, aktuelle Aktionsprospekte zum richtig Geld sparen, Gutscheine u. v. m.!

#allkaufTraum
kostenlos anfordern
Junges lächelndes Paar mit Hund schaut in einen Karton, Perspektive aus dem Inneren des Kartons
#allkaufTraum

TraumhausinSicht

Wir begleiten dich

Du bist dir nicht sicher, ob unsere City Villa 2 das richtige Haus für dich ist? Kein Problem, unsere Hausbauprofis beraten dich gerne!

Datenblatt

Erdgeschoss
99,86m2
Nettogrundfläche*
11,84m 10,34m
Obergeschoss
96,95m2
Walmdach
22°
Kniestockhöhe
0,04m
Dachgeschoss
-

Traumhaus

Für jeden das Passende
Kleiner Junge sitzt auf dem Wohnzimmerboden und spielt mit bunten Holzklötzen

Bauteile

Mit individuellen Bauteilen lassen sich Fertighäuser einzigartig gestalten. Bauteile haben auch ganz praktische Funktionen, die sich konkret auf das Wohngefühl auswirken.

Vielfalt
Pärchen schaut sich an und hält gemeinsam einen Haustürschlüssel vor sich

Infopaket anfordern

Bei dieser Vielfalt ist sicherlich für jeden Geschmack das perfekte Traumhaus dabei. Gemeinsam mit dir planen und bauen wir das Fertighaus, das am Besten zu dir passt.

Glückliches Paar steht Rücken an Rücken und hält Bohrmaschinen beim Innenausbau

Fertighaus als Ausbauhaus

Wer ein Fertighaus mit allkauf baut, der profitiert von unserem durchdachten Ausbauhauskonzept. Unsere Bauherren können den Innenausbau komplett in Eigenregie übernehmen.

Traumhaus

Für jeden das Passende
Kleiner Junge sitzt auf dem Wohnzimmerboden und spielt mit bunten Holzklötzen

Bauteile

Mit individuellen Bauteilen lassen sich Fertighäuser einzigartig gestalten. Bauteile haben auch ganz praktische Funktionen, die sich konkret auf das Wohngefühl auswirken.

Vielfalt
Pärchen schaut sich an und hält gemeinsam einen Haustürschlüssel vor sich
Glückliches Paar steht Rücken an Rücken und hält Bohrmaschinen beim Innenausbau

Fertighaus als Ausbauhaus

Wer ein Fertighaus mit allkauf baut, der profitiert von unserem durchdachten Ausbauhauskonzept. Unsere Bauherren können den Innenausbau komplett in Eigenregie übernehmen.

Infopaket anfordern

Bei dieser Vielfalt ist sicherlich für jeden Geschmack das perfekte Traumhaus dabei. Gemeinsam mit dir planen und bauen wir das Fertighaus, das am Besten zu dir passt.

allkaufKonzept

So geht Hausbau heute!

KFNready

Nachhaltig bauen

Verpasse nicht die neue KFN-Förderung

Die neue Förderung löst die bisherigen Förderrichtlinien BEG Wohngebäude und BEG Nichtwohn­gebäude ab.

Glückliche Eltern stehen mit ihren 2 Kindern in den Armen auf einem Feld beim Sonnenuntergang
Förderung sichern

Mehr Infos

Logo der Qualitätsgemeinschaft Deutscher Fertigbau (QDF)
Logo Bundesverband Deutscher Fertigbau e.V. (BDF)
RAL Gütezeichen Holzhausbau
Siegel der Bundes-Gütegemeinschaft Montagebau und Fertighäuser e. V. (BMF)
Siegel für Top-Hersteller für Fertighäuser, ausgezeichnet vom Capital Fertighaus-Kompass
CrefoZert-Bonitätszertifikat für ausgezeichnete Bonität 2025

Jetzt kostenloses Infopaket anfordern!

kostenlos anfordern

Sichere dir vielfältige Informationen rund um dein Traumhaus von allkauf: Unser allkauf Magazin, aktuelle Aktionsprospekte zum richtig Geld sparen, Gutscheine u. v. m.!