Das Haus zum Leben.
Einfamilienhaus Home 6 mit Satteldach von allkauf, Ansicht Eingang am Tag
13:10  Einfamilienhaus Home 6 mit Satteldach von allkauf, Ansicht Garten am Tag
Hero-Slider Übersicht verfügbare Dachformen Home 6
ca. 143,7 m²
Home 6
Einfamilienhaus

Das Einfamilienhaus Home 6 bietet dir Raum für deinen individuellen Wohnstil mit extra hohem Kniestock. Die angegebenen Maße beziehen sich auf die Variante mit 1,5-geschossigem Satteldach.

Aussenmaße: 10.04 m x 8.84 m

Preis: ab 216.999 €
Grundrisse vergleichen
Inklusiv-Leistungen
  • Architektenleistung
  • Bau-Sicherheitspaket
  • Heizungsanlage- und Elektropaket
  • Dreifach verglaste Fenster inkl. Aluminiumrollläden
  • Luft-Wasser-Wärmepumpe
  • Echtholztreppe
  • Bodenbeläge und Tapeten
  • Luftdichtigkeitsmessung
  • Lichte Raumhöhe von 2,75 m
  • Dämm- und Beplankungspaket
  • Haustechnik inklusive Rohrleitungen
  • Kontrollierte Be- und Entlüftungsanlage mit Wärmerückgewinnung
  • Sanitärobjekte
  • Innentüren, Zargen und Fliesen
  • Steckdosen

Alle Einzelheiten sind in unserer Baubeschreibung nachzulesen.

*ausgeschlossen Apartmenthäuser

Leistungsbeschreibung im Detail

ca. 143,7 m²

EinfamilienhausHome6

Extra hoher Kniestock

Das Home 6 ist das perfekte Haus für dich. Auf fast 144 m2 Wohnfläche hast du viel Raum für deinen individuellen Wohnstil – und die ganze Familie. Und das Beste: Du benötigst kein Riesengrundstück, denn das Home 6 braucht mit seiner kompakten Bauweise gar nicht viel Platz.

28
0
°
Dachneigung

144
0
Nettogrundfläche

1,80
0
Meter
Kniestock

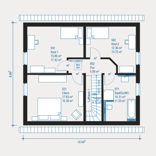
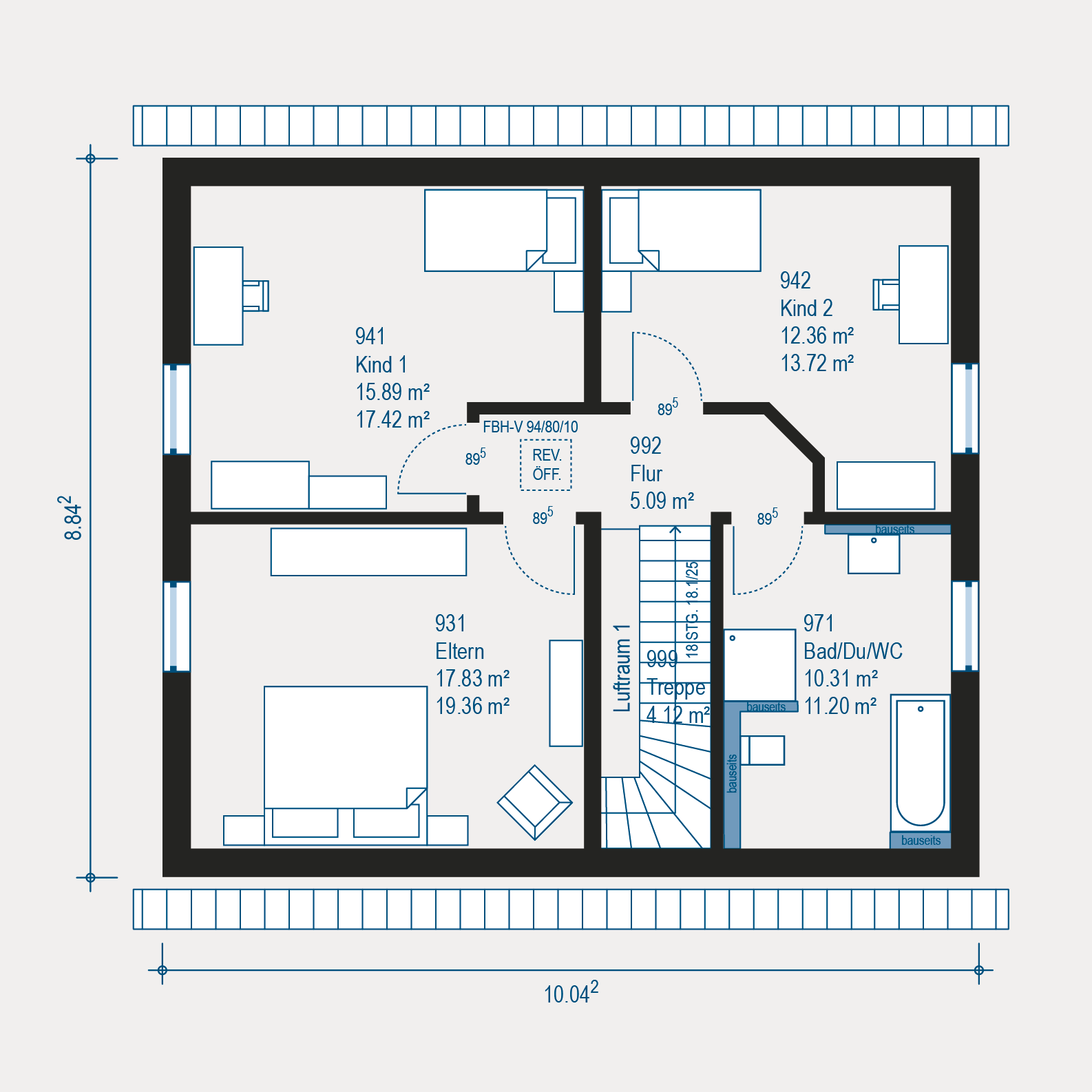
Grundriss

Hohe Individualität

Baufamilien können nach eigenem Geschmack den Grundriss des Hauses variieren und weitere Anbauteile planen. Dadurch besteht die Möglichkeit, das Haus geräumiger zu machen.

Erdgeschoss
72,79 m²
Dachgeschoss
70,91 m²

Datenblatt

Erdgeschoss
72,79m2
Nettogrundfläche*
10,04m 8,84m
Obergeschoss
-
Satteldach
28°
Kniestockhöhe
1,8m
Dachgeschoss
70,91m2

Jetzt kostenloses Infopaket anfordern!

kostenlos anfordern

Sichere dir vielfältige Informationen rund um dein Traumhaus von allkauf: Unser allkauf Magazin, aktuelle Aktionsprospekte zum richtig Geld sparen, Gutscheine u. v. m.!

#allkaufTraum
kostenlos anfordern
Junges lächelndes Paar mit Hund schaut in einen Karton, Perspektive aus dem Inneren des Kartons
#allkaufTraum

Ganz gleich, ob du dir ein Einfamilienhaus mit 1,5 Geschossen und Satteldach oder Pultdach wünschst, oder ob du zwei Vollgeschosse mit Satteldach oder Walmdach bevorzugst – alle Häuser aus der HOME-Serie sind äußerst anpassungsfähig und können nach deinen individuellen Vorstellungen gestaltet werden. Mit dieser Vielfalt ist sicherlich für jeden Geschmack das perfekte Traumhaus dabei.

Du bist dir nicht sicher, ob unser Home 6 das richtige Haus für dich ist? Kein Problem, unsere Hausbauprofis beraten dich gerne!

Inklusiv­leistungen

Im Standard enthalten
  • Luft-Wasser-Wärmepumpe
  • 3-fach verglaste Fenster
  • Kontrollierte Be-/Entlüftungsanlage
  • Bau-Sicherheitspaket
  • Architektenleistung
  • Luftdichtigkeitsmessung
  • u.v.m.

allkauf ist genau die richtige Wahl für alle, die sich mit Eigenleistung aktiv in den Bau ihres Traumhauses einbringen möchten. Schließlich punkten wir mit moderner Architektur, einer großen Auswahl an unterschiedlichen Häusern und Hauskonzepten, einer intelligenten Raumaufteilung und mit einer außergewöhnlichen Qualität. Und diese Qualität gibt es bei uns nicht nur auf dem Papier.

KFNready

Nachhaltig bauen

Verpasse nicht die neue KFN-Förderung

Die neue Förderung löst die bisherigen Förderrichtlinien BEG Wohngebäude und BEG Nichtwohn­gebäude ab.

Glückliche Eltern stehen mit ihren 2 Kindern in den Armen auf einem Feld beim Sonnenuntergang
Förderung sichern

Mehr Infos

Logo der Qualitätsgemeinschaft Deutscher Fertigbau (QDF)
Logo Bundesverband Deutscher Fertigbau e.V. (BDF)
RAL Gütezeichen Holzhausbau
Siegel der Bundes-Gütegemeinschaft Montagebau und Fertighäuser e. V. (BMF)
Siegel für Top-Hersteller für Fertighäuser, ausgezeichnet vom Capital Fertighaus-Kompass
CrefoZert-Bonitätszertifikat für ausgezeichnete Bonität 2025

Jetzt kostenloses Infopaket anfordern!

kostenlos anfordern

Sichere dir vielfältige Informationen rund um dein Traumhaus von allkauf: Unser allkauf Magazin, aktuelle Aktionsprospekte zum richtig Geld sparen, Gutscheine u. v. m.!